邦颂自控
首页
关于邦颂
邦颂产品
成功案例
联系我们
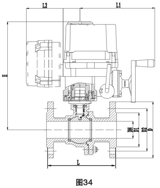
阀体材质:WCB、304、316 公称通径:DN15-DN400mm 压力范围:1.0~6.4Mpa 流体温度:-40℃- 350℃ 功能选项:防爆、调节、开关 适用介质:水、石油、硝酸类、醋酸类、粘性流体、浆料、强氧化性介质等
产品详情
防爆电动球阀是一种球体绕垂直于通道轴旋转90°的阀门,其由回转型防爆角行程电动执行器和O型阀结构组成,属旋转类型高性能调节或开关阀类、接受工业自动化控制(DCS、PLC系统)仪表来源的电流信号或电压信号的输入输出、可实现对工艺管路中流体介质的比例调节或二位开关控制,从而达到对流体介质的流量、压力、温度、液位等参数的自动化控制
产品特点

流体阻力小,球阀是所有阀类中流体阻力最小的一种,以AC220V、AC380V、或DC24V电源电压作动力,接受(4-20mA、0-10mA或1-5VDC)电流信号或电压信号,即可控制运转,以角行程输出的扭矩转动球体0-90°,就能完成启闭动作或调节动作。|||

全电子式电动执行机构,采用机电一体化结构,具有机内伺服操作和开度信号位置反馈、位置指示、手动操作等功能,功能强、性能可靠、连线简单,通过输入电流信号或电压信号,改变球芯的旋转角度,实现比例调节动作。|||
球芯通道平整光滑,不易沉积介质,可以进行管线式通球。结构简单、重量轻、密封性能好。特别适用于零泄漏率的场合。

详细参数
1
1